Площадка «Пикник» несомненно станет украшением Вашего дачного участка и любимым местом игр для ваших детей. Яркая и оригинальная, она с первого взгляда завоюет детские сердца!
Детские уличные площадки «Пикник» красивы, функциональны и надежны. Все модели спортивно-игровых площадок «Пикник» тестируются на безопасность и отвечают самым высоким стандартам качества. Материалы, из которых они изготовлены, проверены на надежность и качество санитарно-эпидемиологическими службами,и имеют сертификат качества. Они не могут вызвать аллергической реакции или раздражения на теле. Элементы из ПНД насыщены добавками, снимающими возникающее при движении статическое напряжение.
Обратите внимание: товар сертифицирован!Сертификат соответствия № 0814209. Остерегайтесь подделок!
Описание:
Детская площадка «Пикник » представляет собой двухуровневую конструкцию. На первом уровне расположена песочница, на специальной перекладине расположены навесные элементы-качели. Второй этаж представляет собой игровое пространство под деревянной крышей или тентом(тент выполнен из яркой ,плотной, устойчивой к ультрофиолету ПВХ ткани). Праздничное настроение в любую погоду создают яркие тона тента, флага и ярко окрашенного пластика.
Способ монтажа:
площадка стоит на грунте за счет собственной тяжести, бетонирование не требуется.
Описание и комплектация:
-Высококачественная древесина(сосна), пропитанная специальными составами защищающими от ультрафиолета и влаги.
-опоры игрового домика изготовлены из многослойного клееного соснового бруса толщиной 90мм с закругленными углами диаметр 20мм;
-пол и ограждения из массива сосны толщиной 19 мм;
-домик с деревянной крышей (2 шт.);
-песочница с 2-мя лавочками (2 шт.);
-горка пластиковая волнистая длиной 2.95 м, шириной 42 см;
-лестница с деревянными ступенями;
-шторм трап (веревочная лестница)
-скалодром на 8 камней + канат для скалодрома, диаметр 15 мм.
-балка для качелей (навесного оборудования);
-качели-гнездо
-качели –долька
-качели-drop
-ручки (1 пара)
-кронштейны для качелей
-спираль
-баскетбольное кольцо
-фигурные ступени(волна)
-канат
-кольца гимнастические
-шведская стенка с турником
-рукоход Г-образный.
-сетка альпинист .
Цвет горки:
-желтый;
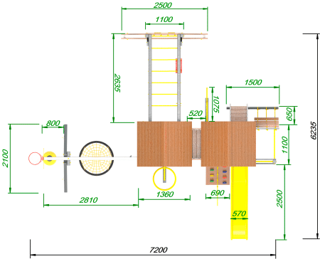
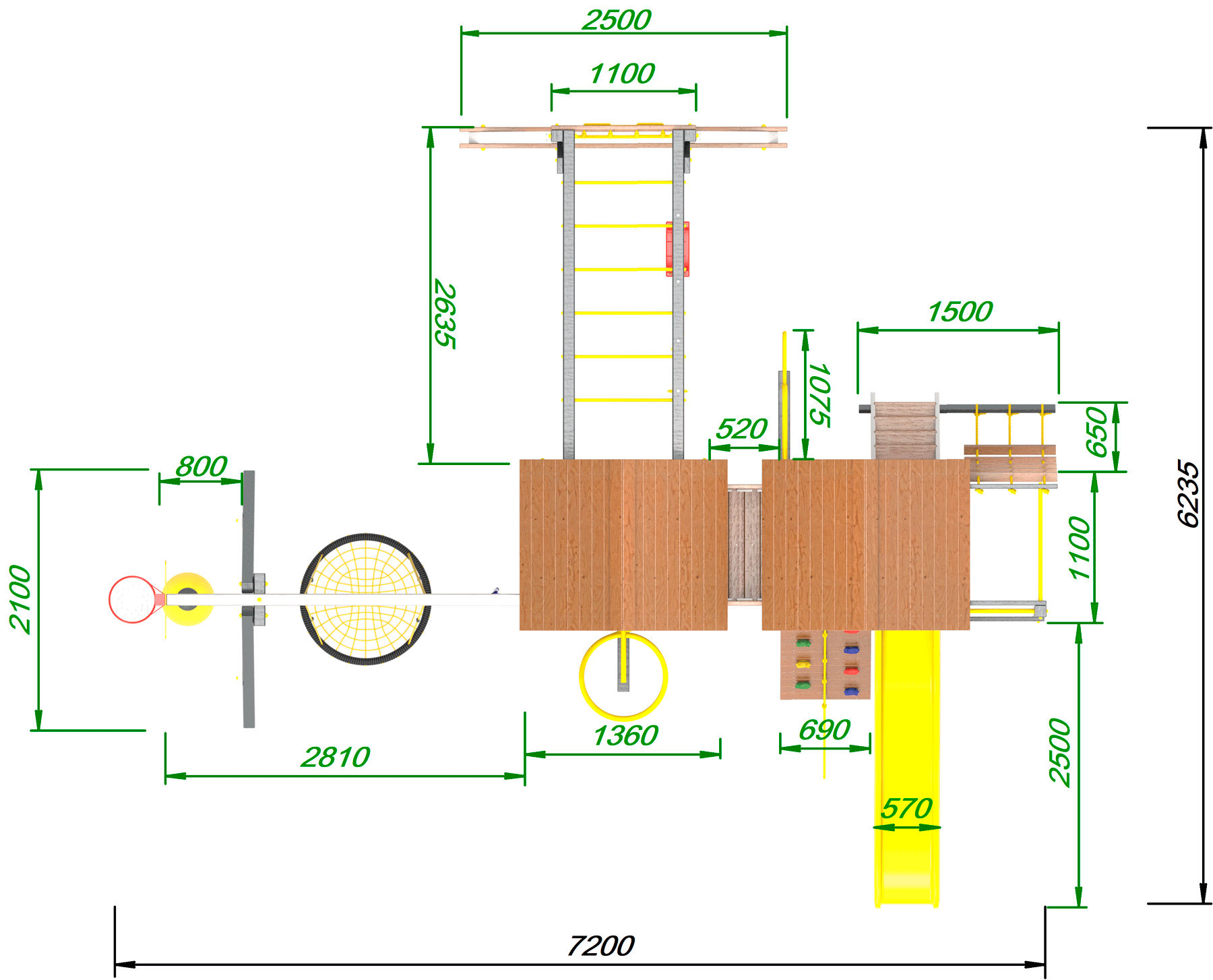
Технические характеристики:
-площадь площадки 7.2Х6.3 метра
-внешние размеры домика (ширина/глубина) 110х132 см;
-высота горки - 1,4 метра, длина - 2.95 м, шириной 48 см;
-высота домика - 330 см;
-высота ограждения 72см;
-длина балки с качелями 2,8 метра;
занимаемая площадь для свободного передвижения и игр – 8х7 метров.
Комплектация модели выполняется по вашему желанию.
Древесина пропитана высококачественными экологичными материалами (антисептиками).
Дополнительные опции (приобретаются отдельно):
● деревянная крыша
● поручни для лестницы
● диван на цепях двухместный
● столик в песочницу
●крышка для песочницы двойная
●сеть для лазанья + крепеж
●качели для малышей
●качели долька
●веревочная лестница
●трапеция
●руль
●телескоп
●телефон
Обращаем Ваше внимание, что фактический цвет детской площадки может отличаться от представленных фото на сайте. Специфика окраски нетоксичными пропитками и красителями допускает отклонения в цветовой гамме отгружаемых изделий. Также обратите внимание, что фактический цвет может отличаться из-за цветопередачи устройства на котором Вы смотрите фото.
Производитель оставляет за собой право менять цвет отдельных деталей и комплектующих(включая пластик, канаты и пр.), при этом сохраняя весь функционал и характеристики товара.
Для покупки товара в нашем интернет-магазине выберите понравившийся товар и добавьте его в корзину. Далее перейдите в Корзину и нажмите на «Оформить заказ» или «Быстрый заказ».
Когда оформляете быстрый заказ, напишите ФИО, телефон и e-mail. Вам перезвонит менеджер и уточнит условия заказа. По результатам разговора вам придет подтверждение оформления товара на почту или через СМС. Теперь останется только ждать доставки и радоваться новой покупке.
Оформление заказа в стандартном режиме выглядит следующим образом. Заполняете полностью форму по последовательным этапам: адрес, способ доставки, оплаты, данные о себе. Советуем в комментарии к заказу написать информацию, которая поможет курьеру вас найти. Нажмите кнопку «Оформить заказ».
Оплачивайте покупки удобным способом. В интернет-магазине доступно 3 варианта оплаты:
- Наличные при самовывозе или доставке курьером. Специалист свяжется с вами в день доставки, чтобы уточнить время и заранее подготовить сдачу с любой купюры. Вы подписываете товаросопроводительные документы, вносите денежные средства, получаете товар и чек.
- Безналичный расчет при самовывозе или оформлении в интернет-магазине: карты Visa и MasterCard. Чтобы оплатить покупку, система перенаправит вас на сервер системы ASSIST. Здесь нужно ввести номер карты, срок действия и имя держателя.
- Электронные системы при онлайн-заказе: PayPal, WebMoney и Яндекс.Деньги. Для совершения покупки система перенаправит вас на страницу платежного сервиса. Здесь необходимо заполнить форму по инструкции.
Экономьте время на получении заказа. В интернет-магазине доступно 4 варианта доставки:
- Курьерская доставка работает с 9.00 до 19.00. Когда товар поступит на склад, курьерская служба свяжется для уточнения деталей. Специалист предложит выбрать удобное время доставки и уточнит адрес. Осмотрите упаковку на целостность и соответствие указанной комплектации.
- Самовывоз из магазина. Список торговых точек для выбора появится в корзине. Когда заказ поступит на склад, вам придет уведомление. Для получения заказа обратитесь к сотруднику в кассовой зоне и назовите номер.
- Постамат. Когда заказ поступит на точку, на ваш телефон или e-mail придет уникальный код. Заказ нужно оплатить в терминале постамата. Срок хранения — 3 дня.
- Почтовая доставка через почту России. Когда заказ придет в отделение, на ваш адрес придет извещение о посылке. Перед оплатой вы можете оценить состояние коробки: вес, целостность. Вскрывать коробку самостоятельно вы можете только после оплаты заказа. Один заказ может содержать не больше 10 позиций и его стоимость не должна превышать 100 000 р.
Ваш город